‹ › ×
    brand-logo
    • Projets
    • Equipement
      • Équipement
      • Médiathèque de Plouzané
      • Centre culturel de la presqu'ile de Crozon
      • Médiathèque de Plouvien
      • Hôpital Morvan à Brest
      • Cercle mixte de l'école de gendarmerie à Dinéault
      • Restaurant Kernévent à Plouzané
      • Salle Aréna à Brest
      • Centre Municipal Omnisport à Brest
      • Salle La forge à Plouvien
      • Stade Francis le Blé à Brest
      • Salle Mac Orlan à Brest
      • Restaurant collectif à Guipavas
      • Restaurant de l'école des Moulins à Plouvien
      • Maisons des arts à Landivisiau
      • MPT de Lambézellec à Brest
    • Tertiaire / Commerce
      • Tertiaire et commerce
      • Boulangerie Bara Goell Toaz à St Thégonnec
      • Bâtiment Cap Océan à Plouzané
      • Galerie Antinoë à Brest
      • CDAS de Brest St Marc
      • Bâitment Satimo à Plouzané
      • Bâtiment Le Ponant à Plouzané
    • Enseignement
      • Enseignement
      • Collège Parc ar C'hoat à Moëlan sur Mer
      • Collège Collobert à Pont de Buis
      • Groupe scolaire du Pilier Rouge à Brest
      • Collège Alain à Crozon
      • Groupe scolaire de Kérinou à Brest
      • Lycée professionnel de Pont de Buis
      • Collège Camille Vallaux au Relecq Kerhuon
    • Logements
      • Logements
      • Logements quartier Kergoat à Brest
      • Bâtiment Bois Belleau à Lanvéoc-Poulmic
      • Logements quartier Sanquer à Brest
      • Logements quartier St Martin à Brest
      • Extension d'une maison à Brest
      • Logements Cdt Drogou à Brest
      • Extension maison à Camaret sur mer
      • Ilot C de la ZAC des Capucins à Brest
      • Extension d'un moulin à Camaret sur Mer
      • Logements rue Massillon à Brest
      • Logements à Loperhet
      • Logements de Coataudon à Guipavas
      • Logements au Stang à Brest
    • Concours
      • Concours
      • Logements Pen ar Creac'h II à Brest
      • Téléphérie urbain de Brest
      • Ecole Stang ar C'hoat à Quimper
      • Médiathèque de Guipavas
      • Gare routière à Plabennec
      • Centre d'incendie et de secours de Châteaulin
      • Urgence de l'hôpital de la Cavale Blanche à Brest
      • Gymnase de l'Europe à Brest
      • Ateliers de l'AMF à Brest
      • Logements bd Pompidou à Brest

    Ensemble de bureaux

    PLOUZANÉ

    Carousel Link
     
    ‹ ›

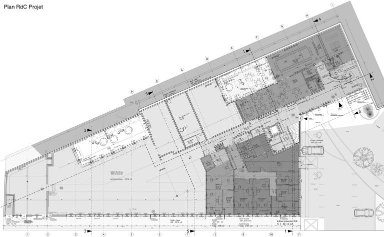
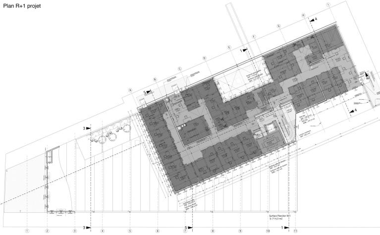
      Restructuration du bâtiment Cap Océan avenue Alexis de Rochon au Technopôle Brest Iroise

      Maître d’ouvrage : SEMPI

      Surface : 2 099 m2

      Montant des travaux HT : 1 825 000 €

      Achèvement : Décembre 2017

      Le bâtiment situé au coeur de Technopôle Brest Iroise domine l’entrée de la rade depuis sa position unique en surplomb de la mer. Initialement créé par l’agence en 2002 pour accueillir une unité de production d’algues destinées à la cosmétique, l’édifice a subi une restructuration dernièrement afin de trouver une nouvelle vocation : devenir un espace de bureaux pour plusieurs organismes portées sur la recherche océanographiques.

       

      Ainsi, par l’apport de nombreuses ouvertures, la création de grandes surfaces libre par la démolition des cloisons et la création d’un plancher intermédiaire dans une grande hauteur cinq unités de bureaux avec des espaces collectifs ont pu être aménagés mettant à profit la configuration initiale en forme de belvédère. 

       

      Les utilisateurs partagent entre eux deux patios créés principalement pour amener de la lumières au coeur de l’édifice, plusieurs salles de réunion, un banque d'accueil et un espace de vie destinés à la détente. La création d’une charte graphique, d'un logo et l’apport de mobiliers en lien avec ceci renforce l’idée de cohésion. Un nouvel aménagement extérieur augmente la capacité d’accueil du parking et améliore la qualité paysagère du pourtour de l’édifice.

      Mentions légales