‹ › ×
    brand-logo
    • Projets
    • Equipement
      • Équipement
      • Médiathèque de Plouzané
      • Centre culturel de la presqu'ile de Crozon
      • Médiathèque de Plouvien
      • Hôpital Morvan à Brest
      • Cercle mixte de l'école de gendarmerie à Dinéault
      • Restaurant Kernévent à Plouzané
      • Salle Aréna à Brest
      • Centre Municipal Omnisport à Brest
      • Salle La forge à Plouvien
      • Stade Francis le Blé à Brest
      • Salle Mac Orlan à Brest
      • Restaurant collectif à Guipavas
      • Restaurant de l'école des Moulins à Plouvien
      • Maisons des arts à Landivisiau
      • MPT de Lambézellec à Brest
    • Tertiaire / Commerce
      • Tertiaire et commerce
      • Boulangerie Bara Goell Toaz à St Thégonnec
      • Bâtiment Cap Océan à Plouzané
      • Galerie Antinoë à Brest
      • CDAS de Brest St Marc
      • Bâitment Satimo à Plouzané
      • Bâtiment Le Ponant à Plouzané
    • Enseignement
      • Enseignement
      • Collège Parc ar C'hoat à Moëlan sur Mer
      • Collège Collobert à Pont de Buis
      • Groupe scolaire du Pilier Rouge à Brest
      • Collège Alain à Crozon
      • Groupe scolaire de Kérinou à Brest
      • Lycée professionnel de Pont de Buis
      • Collège Camille Vallaux au Relecq Kerhuon
    • Logements
      • Logements
      • Logements quartier Kergoat à Brest
      • Bâtiment Bois Belleau à Lanvéoc-Poulmic
      • Logements quartier Sanquer à Brest
      • Logements quartier St Martin à Brest
      • Extension d'une maison à Brest
      • Logements Cdt Drogou à Brest
      • Extension maison à Camaret sur mer
      • Ilot C de la ZAC des Capucins à Brest
      • Extension d'un moulin à Camaret sur Mer
      • Logements rue Massillon à Brest
      • Logements à Loperhet
      • Logements de Coataudon à Guipavas
      • Logements au Stang à Brest
    • Concours
      • Concours
      • Logements Pen ar Creac'h II à Brest
      • Téléphérie urbain de Brest
      • Ecole Stang ar C'hoat à Quimper
      • Médiathèque de Guipavas
      • Gare routière à Plabennec
      • Centre d'incendie et de secours de Châteaulin
      • Urgence de l'hôpital de la Cavale Blanche à Brest
      • Gymnase de l'Europe à Brest
      • Ateliers de l'AMF à Brest
      • Logements bd Pompidou à Brest

    Groupe scolaire de Kérinou

    BREST

    Carousel Link
     
    ‹ ›

      Reconstruction de l'école maternelle et primaire 

      9 classes, 1 service de restauration, 1 salle polyvalente et 1 salle de sport

      240 repas / jour

      Concours : Lauréat

      Maître d’ouvrage : Ville de Brest

      Maître d’ouvrage délégué : BMa

      Surface : 2 380 m2

      Montant des travaux HT : 4 100 000 €

      Achèvement : Juillet 2009

      Lauréat du Prix Architecture Bretagne 2010

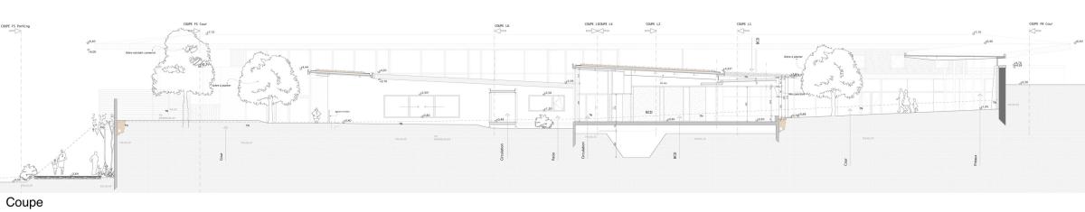
      L’école de KERINOU fait partie d’un site où alternent ensembles résidentiels et paysage se déclinant généreusement au gré d’une végétation abondante en jardins suspendus et en espaces boisés.

       

      L’école se veut être un maillon de ce paysage.

       

      On accède par l’intermédiaire de rampes épaulées de talus sur un socle de pierres en gabion.

      Trois volumes en lattes de bois abritant les préaux de la maternelle rythment la longueur du mur d’enceinte.

       

      Une toiture se prolongeant en auvent accompagne l’accès à l’école jusqu’en limite de l’espace public.

      Dans son aspect le plus ouvert, c’est une simple pergola générant un jeu d’ombre et de lumière.

      Au-delà, cette trame devient support d’éléments vitrés constituant une verrière protectrice, teintée ponctuellement de jaune, rouge ou bleu, au gré du parcours.

       

      Les toitures végétalisées abritant la « maternelle » et le « primaire » prolongent le site par le jeu de leur composition formelle. 

      Les infléchissements en longueur de ces toitures vont à la rencontre d’un espace boisé situé sur les hauteurs du site, lieu privilégié qui a abrité les jeux de plusieurs générations d’enfants et qui appartient naturellement à l’histoire de l’école. 

      Mentions légales